Offers Over £235,000
2 Bedroom Semi-Detached House for sale
6 Cora Linn Court,
Brodick,
Isle of Arran,
North Ayrshire,
KA27 8AB
Nestled in a quiet spot within the charming coastal village of Brodick, this delightful two-bedroom mid-terraced home offers an excellent opportunity for a first-time buyer, a holiday retreat, or an Airbnb investment. Perfectly positioned, it’s within easy walking distance of the village centre, local amenities, and the ferry terminal, while enjoying beautiful views of Goatfell from the principal bedroom.
Tastefully maintained and updated by the current owner, the property offers bright, well-proportioned accommodation arranged over two floors.
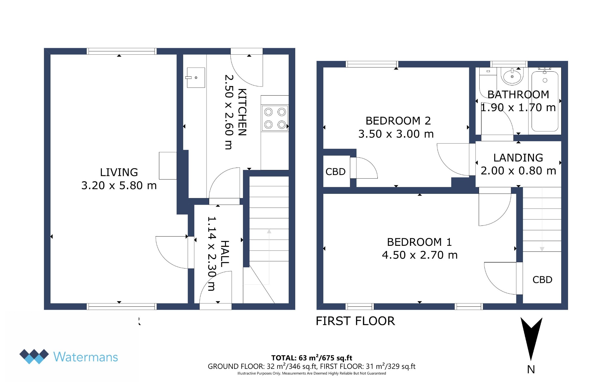
On the ground floor, a welcoming entrance hallway with an understairs recess leads through to a spacious open-plan living and dining room, featuring windows to both the front and rear that fill the space with natural light. A fireplace provides a charming focal point and could be reinstated if desired. To the rear, the modern kitchen is fitted with a range of contemporary units and worktops, offering ample space for casual dining and direct access to the private back garden, ideal for enjoying the fresh island air.
Upstairs, the home continues to impress with two generous double bedrooms and a stylish bathroom. The principal bedroom enjoys an over-stairs cupboard, twin aspect windows with a stunning outlook towards Goatfell, while the second bedroom, set to the rear, benefits from built-in storage. The bathroom features a modern three-piece suite with an electric shower over the bath. A bright landing provides access to all rooms and includes a loft hatch for additional storage.
Externally, the property is attractively painted in a soft blue, giving it a welcoming coastal charm. The rear garden is predominantly laid to lawn, with a small gravel area directly outside the back door providing space for outdoor seating or potted plants. A small shed is situated at the end of the garden, offering useful storage for garden tools or outdoor equipment. The front garden adds further kerb appeal, and on-street parking is available.
Further features include double glazing and electric heating throughout. Combining traditional charm with modern comfort, this lovely Brodick home is ready to move into and perfectly placed to enjoy the best of island living.
Area Description
Hillview Place is located in an elevated and prime position in Brodick, on the beautiful Isle of Arran. The Isle of Arran, often referred to as “Scotland in Miniature”, has everything to offer: a welcoming community, forest trails and mountain peaks, sheltered beaches, and a rich variety of local heritage, crafts, and produce.
Brodick, Arran’s capital, has two Co-op supermarkets, a great selection of independent shops, restaurants, and cafés, as well as a full range of services including a primary school, nursery, library, and medical centre. Brodick also hosts the island’s main ferry terminal, with regular daily sailings operated by Caledonian MacBrayne to the mainland at Ardrossan and Troon. Commuters and travellers benefit from Road Equivalent Tariff (RET) ferry fares, making travel more affordable.
The ports of Ardrossan and Troon both have mainline railway stations with direct trains to Glasgow that connect conveniently with the ferry timetable. Glasgow city centre is approximately 30 miles away. Prestwick International Airport lies 16 miles south of Ardrossan, while Glasgow International Airport is about 24 miles to the east.
The nearby village of Lamlash, just a short drive from Brodick, is home to the island’s high school and hospital. It also offers a range of shops, restaurants, and cafés. A frequent bus service operates around and across the island, and at Lochranza there is a ferry terminal providing quick access to the stunning west coast of Scotland via Claonaig – Kintyre, here we come!
"We sold our house with Watermans, and I can honestly say they were absolutely excellent in every stage of the process. Professional approachable and extremely efficient with everything that was required. They made what could of been a stressful process into a relatively stress-free procedure. I was very impressed by Watermans and can't thank them enough!"
S McCabe, Watermans Client